CASA 4X20
La
casa 4X20 está diseñada para la sierra del Perú, este modelo no es un diseño
que debe usarse en la selva, podría usarse en la costa en zonas donde
predominan las estribaciones andinas, son zonas ubicadas en las cabeceras de
las cuencas de los ríos donde llueve mucho en el verano, como Chosica,
Chaclacayo, Yauyos, etc.
En el
Perú, casi todos los años se da un fenómeno climático en las partes altas de
los andes denominadas heladas, estas producen cada año varios daños en los
habitantes de zonas alto andinas, muchas personas mueren a causa de estas
heladas, este año será más difícil con la aparición del coronavirus COVID-19.
En
respuesta a ello, he creado un prototipo denominado CASA 4x20, que es una
aproximación a la solución de crear una vivienda que responda adecuadamente al
clima de la sierra.
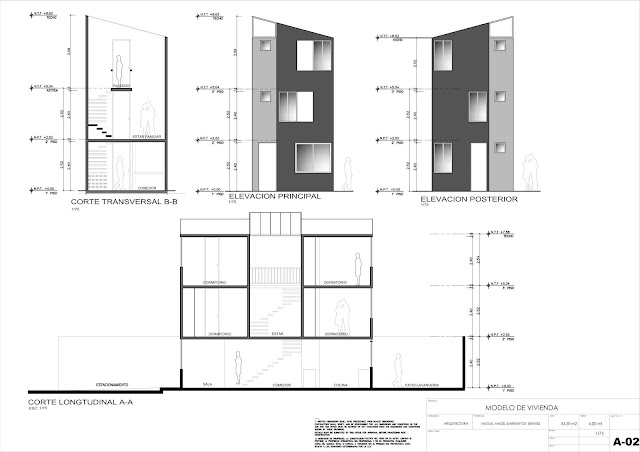
Está vivienda
diseñada para la sierra utiliza el concepto de tener un invernadero, La sierra
si bien se tiene bajas temperaturas, el asoleamiento es bastante bueno, es por
ello que estamos aprovechando la energía solar por un tema de partido y
conceptual se ubica en la parte central de la casa, parte del concepto hogar,
el calor del sol baja hasta el estar familiar, y de allí se distribuye
calentando las paredes de las habitaciones, se ha decidido también separar las
áreas frías como baños, pero manteniendo siempre el concepto de ventilación
natural.
La
casa puede empezar con un módulo inicial que tiene 35m2 y tiene un área de usos
múltiples, cocina integrada a esta área, un dormitorio y un baño y la escalera
de acceso al segundo nivel donde la familia que habite la case se encargara de
seguir el proceso de ampliación.
Los
colores a utilizar en las paredes deben ser oscuros, en la vista se usó el
color blanco, pero no es lo ideal, los colores oscuros atraen más la luz solar,
los jardines en la sierra que en muchas zonas es relativamente árida están
hechos con piedra caliza, la piedra caliza tiene la particularidad de absorber
el calor del día y emitir progresivamente este calor en la noche. El agua es
calentada mediante energía solar, los closets de la vivienda son colocados
pegados a los muros exteriores, la idea es que con formas económicas y
practicas poderle brindar un confort térmico a la vivienda.
El
techo del invernadero es de una estructura de madera, tornillo, huairuro o
similar, la idea es tener una estructura fuerte que soporte las granizadas, por
ello utilizamos el policarbonato, pues resiste los golpes, es transparente pues
mientras más luz solar pase, el calor puede concentrase más, se tiene una
canaleta para en temporada de lluvias eliminar las aguas pluviales, la
inclinación del techo es superior al 25% de pendiente para tener una fácil
evacuación de las aguas.
Nuevamente insisto, si usted es una
persona que dice que se debe techar todo su terreno para ganar más “espacio”
entonces este plano que voy a compartir con el público no es para usted, este
plano es para aquellas personas que tienen un lote de terreno de 4 metros de
frente por 20 metros de fondo y desean construir una casa con suficiente luz y
área libre para su familia.
Le sugiero revisar el link que a
continuación le dejo, el Estado Peruano tiene programas de subsidios y
financiamiento para construcción en lotes de terrenos dentro del programa Techo
Propio, para CONSTRUIR su vivienda el bono puede ser de hasta S/ 23,435, para
MEJORAR es decir ampliar su vivienda el bono es de S/ 9,890.
Más detalles los puede encontrar en este
enlace.
Es importante mencionar que soy
miembro del Colegio de Arquitectos del Perú, es delito ejercer la arquitectura
si no se está habilitado para ejercer la profesión, en este link usted
encontrara si un arquitecto está habilitado o no para ejercer la
profesión.
Los planos que comparto con ustedes son
de arquitectura, es decir hay que desarrollar todavía todos los planos de
ingeniería, los planos que voy a compartir GRATUITAMENTE están en una versión
denominada Autocad 2013 que estoy dispuesto a compartir junto con la
información digital que usted puede ver en este post, si está interesado me
escribe al correo electrónico contacto@miguelangelbarrientosbenites.com
solicitando su plano, yo le reenvío el plano de forma GRATUITA.
La casa cumple el marco legal del
programa MI VIVIENDA, la Ley 29090 y su reglamento, además de la norma del
Reglamento Nacional de Edificaciones para viviendas.
Espero les ayude. Hasta más vernos.








0 comentarios:
Publicar un comentario
Suscribirse a Enviar comentarios [Atom]
<< Inicio